Anlasser dreht nicht
Moderator: Rocky00748
1 Beitrag
• Seite 1 von 1
Anlasser dreht nicht
Hallo,
da mir unser Andi einen Auftrag zur Fehlersuche an einer C6 „zugeschoben“
hat, hier mal die Auflösung des Problems. Vielleicht hilft es ja dem einen oder anderen mal…
Es handelte sich um eine 2005er C6 mit Schaltgetriebe, deren Anlasser sich nicht gedreht hat, wenn man den Startknopf betätigte.
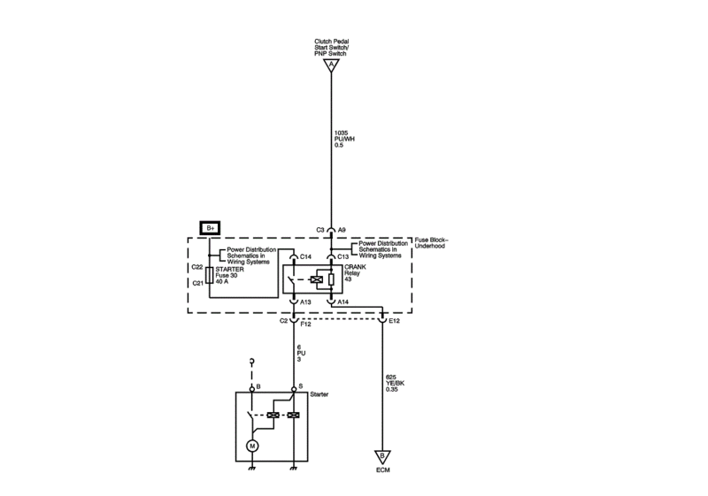
Als erstes überbrückte ich das „CRANK Relay“ Nummer 43 im Motorraum-Sicherungskasten. Also Relais abgezogen, mit einer Büroklammer Pin A13 und C14 gebrückt und der Wagen lief. Somit konnte eine schlechte Verbindung am Anlasser schon mal ausgeschlossen werden. Die Anlasser-Sicherung Nummer 30 und das Relais selbst war in Ordnung, aber wurde nicht angesteuert.
In 2 Schritten sollte die Ansteuerung des CRANK Relay erfolgen:
1)
Zuschaltung von Plus 12 Volt auf das CRANK Relay:
Das BCM erkennt, das die Sicherheit erfüllt und der Fahrzeugschlüssel erkannt wurde.
Darauf schaltet es das RUN/CRANK Relay auf der Rückseite des BCM. Das Relais schaltet nun 12 Volt auf die Sicherung „ECM“ welche auf der Vorderseite vom BCM eingesteckt ist.
Von dieser Sicherung laufen die 12 Volt zum Kupplungspedalschalter. Bei getretener Kupplung legt der Kupplungspedalschalter die 12 Volt dann auf Pin C13 des CRANK Relay im Motorsicherungskasten.
Hier mal ein vereinfachter Schaltplan dazu:
2)
Zuschaltung von Minus auf das CRANK Relay:
Durch drücken des Startknopfes wird ein 1500 Ohm Widerstand zwischen Pin 7 und Pin 66 des oberen, linken Steckers am BCM geschalten.
Daraufhin sendet das BCM eine Startanforderung per GM-LAN an das Motorsteuergerät.
Empfängt das Motorsteuergerät die Nachricht, legt es Minus auf den Pin A 14 des CRANK Relais.
Wenn der Motor läuft oder mehr als 5 Sekunden vergangen sind, nimmt es das Minus wieder weg.
(Achtung: So lange das Motorsteuergerät kein Minus an das CRANK Relay sendet, liegt Plus auf dem Pin !!!
Dies hat mich bei der Fehlersuche zuerst etwas verarscht. Das ist aber auch bei vielen Schaltern an der Vette so. Keine Ahnung, warum das GM so macht.)
In meinem Fall wurde der Pin C13 des CRANK Relay mit Plus 12 Volt versorgt, aber das Minus vom Motorsteuergerät fehlte zum Starten.
Also habe ich das Multimeter auf Pin 7 und Pin 66 des oberen BCM-Steckers gelegt und den Widerstand gemessen.
Beim Drücken des Startknopfes wird zuerst 1200 Ohm Widerstand angezeigt und nach einer Sekunde dann erst die benötigten 1500 Ohm.
Der Starterknopf sollte bei Gelegenheit mal Neu, war aber nicht das eigentliche Problem.
Lediglich die Pins im Stecker hatten einen zu großen Übergangswiderstand.
Nachdem der Stecker ein Paar mal aus- und eingesteckt wurde, drehte der Anlasser wieder.
Ich hab das BCM dann zur Sicherheit ausgebaut und alle Steckverbindungen und Sicherungen gereinigt.
Ansonsten wäre nur noch eine gestörte GM-Lan Verbindung oder defektes BCM/PCM in Frage gekommen.
Gruß André
da mir unser Andi einen Auftrag zur Fehlersuche an einer C6 „zugeschoben“
hat, hier mal die Auflösung des Problems. Vielleicht hilft es ja dem einen oder anderen mal…Es handelte sich um eine 2005er C6 mit Schaltgetriebe, deren Anlasser sich nicht gedreht hat, wenn man den Startknopf betätigte.
Als erstes überbrückte ich das „CRANK Relay“ Nummer 43 im Motorraum-Sicherungskasten. Also Relais abgezogen, mit einer Büroklammer Pin A13 und C14 gebrückt und der Wagen lief. Somit konnte eine schlechte Verbindung am Anlasser schon mal ausgeschlossen werden. Die Anlasser-Sicherung Nummer 30 und das Relais selbst war in Ordnung, aber wurde nicht angesteuert.
In 2 Schritten sollte die Ansteuerung des CRANK Relay erfolgen:
1)
Zuschaltung von Plus 12 Volt auf das CRANK Relay:
Das BCM erkennt, das die Sicherheit erfüllt und der Fahrzeugschlüssel erkannt wurde.
Darauf schaltet es das RUN/CRANK Relay auf der Rückseite des BCM. Das Relais schaltet nun 12 Volt auf die Sicherung „ECM“ welche auf der Vorderseite vom BCM eingesteckt ist.
Von dieser Sicherung laufen die 12 Volt zum Kupplungspedalschalter. Bei getretener Kupplung legt der Kupplungspedalschalter die 12 Volt dann auf Pin C13 des CRANK Relay im Motorsicherungskasten.
Hier mal ein vereinfachter Schaltplan dazu:
2)
Zuschaltung von Minus auf das CRANK Relay:
Durch drücken des Startknopfes wird ein 1500 Ohm Widerstand zwischen Pin 7 und Pin 66 des oberen, linken Steckers am BCM geschalten.
Daraufhin sendet das BCM eine Startanforderung per GM-LAN an das Motorsteuergerät.
Empfängt das Motorsteuergerät die Nachricht, legt es Minus auf den Pin A 14 des CRANK Relais.
Wenn der Motor läuft oder mehr als 5 Sekunden vergangen sind, nimmt es das Minus wieder weg.
(Achtung: So lange das Motorsteuergerät kein Minus an das CRANK Relay sendet, liegt Plus auf dem Pin !!!
Dies hat mich bei der Fehlersuche zuerst etwas verarscht. Das ist aber auch bei vielen Schaltern an der Vette so. Keine Ahnung, warum das GM so macht.)
In meinem Fall wurde der Pin C13 des CRANK Relay mit Plus 12 Volt versorgt, aber das Minus vom Motorsteuergerät fehlte zum Starten.
Also habe ich das Multimeter auf Pin 7 und Pin 66 des oberen BCM-Steckers gelegt und den Widerstand gemessen.
Beim Drücken des Startknopfes wird zuerst 1200 Ohm Widerstand angezeigt und nach einer Sekunde dann erst die benötigten 1500 Ohm.
Der Starterknopf sollte bei Gelegenheit mal Neu, war aber nicht das eigentliche Problem.
Lediglich die Pins im Stecker hatten einen zu großen Übergangswiderstand.
Nachdem der Stecker ein Paar mal aus- und eingesteckt wurde, drehte der Anlasser wieder.
Ich hab das BCM dann zur Sicherheit ausgebaut und alle Steckverbindungen und Sicherungen gereinigt.
Ansonsten wäre nur noch eine gestörte GM-Lan Verbindung oder defektes BCM/PCM in Frage gekommen.
Gruß André
LS 7 powerd by CCRP 

-

andree - Beiträge: 2136
- Registriert: 15.09.13, 19:14
- Wohnort: Baden
- Geschlecht: Männlich
- Fahrzeug: C5 LS7 Convertible MN6
1 Beitrag
• Seite 1 von 1
Wer ist online?
Mitglieder in diesem Forum: 0 Mitglieder und 10 Gäste
